Unsere Nebeneingangstüren
Unsere Nebeneingangstüren
Die Nebeneingangstüren nehmen sich in der optischen Erscheinung etwas zurück. Sie punkten aber durch ihre Meisterqualität, Sicherheit und Funktionalität. Das bringt Ihnen die ganze Leistung und schont gleichzeitig Ihr Budget. Daher sind sie ideal für den Hinterausgang oder für den Durchgang zur Garage, als Heizraum- oder Kellertüre, aber auch als Mehrzwecktüre für das Nebengebäude sowie für getrennte Garagen oder Gartenhäuser geeignet. Stimmen Sie Ihre Nebeneingangstüre mit der richtigen Auswahl aus unserer breiten Modellpalette einfach mit der Haustüre farblich und funktionell zueinander ab.
Fa. DOORS
Holz Nebeneingangstüren
HINWEIS: VERWENDUNG NUR FÜR UNBEWOHNTE UND UNBEHEIZTE RÄUME GEEIGNET!
Holz
Technische Details

STANDARDAUSFÜHRUNG
• Mehrschichtig verleimtes Holz
• Wärmedämmung UD (Modellabhängig, Fichte) ab 1,8 bis 2,0 W/(m²K)
• ISO-Wärmeschutzglas, 2-fach, Ug=1,1 W/m²K)
• ISO-Füllungen außen profiliert
• Relief-Fräsungen an Füllung nur außen
• Einfarbige Dickschichtlasur
• Serienmäßige 2-fach Dichtung
• Serienmäßige 3-fach Verriegelung und starke 3D-verstellbare Bänder
• Holzart Fichte, Lärche, Eiche
• Türblattstärke 68 mm, Rahmenstärke 68 mm
• Verwendung nur für unbewohnte und unbeheizte Räume geeignet
SONDERAUSFÜHRUNG
• Sonderaußenmaße bis 125 x 230 cm
• Keine Oberlichter, Seitenteile möglich
Jetzt Nebeneingangstüre selber konfigurieren.
HINWEIS: VERWENDUNG NUR FÜR UNBEWOHNTE UND UNBEHEIZTE RÄUME GEEIGNET!
Holz
Technische Details

STANDARDAUSFÜHRUNG
• Mehrschichtig verleimtes Holz
• Wärmedämmung UD (Modellabhängig, Fichte) ab 1,8 bis 2,0 W/(m²K)
• ISO-Wärmeschutzglas, 2-fach, Ug=1,1 W/m²K)
• ISO-Füllungen außen profiliert
• Relief-Fräsungen an Füllung nur außen
• Einfarbige Dickschichtlasur
• Serienmäßige 2-fach Dichtung
• Serienmäßige 3-fach Verriegelung und starke 3D-verstellbare Bänder
• Holzart Fichte, Lärche, Eiche
• Türblattstärke 68 mm, Rahmenstärke 68 mm
• Verwendung nur für unbewohnte und unbeheizte Räume geeignet
SONDERAUSFÜHRUNG
• Sonderaußenmaße bis 125 x 230 cm
• Keine Oberlichter, Seitenteile möglich
Jetzt Nebeneingangstüre selber konfigurieren.
HINWEIS: VERWENDUNG NUR FÜR UNBEWOHNTE UND UNBEHEIZTE RÄUME GEEIGNET!
Holz
Technische Details

STANDARDAUSFÜHRUNG
• Mehrschichtig verleimtes Holz
• Wärmedämmung UD (Modellabhängig,
Fichte)ab 1,8 bis 2,0 W/(m²K)
• ISO-Wärmeschutzglas, 2-fach, Ug=1,1 W/m²K)
• ISO-Füllungen außen profiliert
• Relief-Fräsungen an Füllung nur außen
• Einfarbige Dickschichtlasur
• Serienmäßige 2-fach Dichtung
• Serienmäßige 3-fach Verriegelung und starke
3D-verstellbare Bänder
• Holzart Fichte, Lärche, Eiche
• Türblattstärke 68 mm, Rahmenstärke 68 mm
• Verwendung nur für unbewohnte und
unbeheizte Räume geeignet
SONDERAUSFÜHRUNG
• Sonderaußenmaße bis 125 x 230 cm
• Keine Oberlichter, Seitenteile möglich
Jetzt Nebeneingangstüre selber konfigurieren.
Fa. PUTZ
Aluminium & Kunststoff Nebeneingangstüren
Modell NE-100
ButtonModell NE-200
SchaltflächeModell NE-300
SchaltflächeModell NE-500
ButtonModell NE-600
ButtonModell NE-100
ButtonModell NE-200
SchaltflächeModell NE-300
SchaltflächeModell NE-500
ButtonModell NE-600
ButtonModell NE-100
ButtonModell NE-200
SchaltflächeModell NE-300
SchaltflächeModell NE-500
ButtonModell NE-600
ButtonAluminium
Technische Details
KONSTRUKTION:
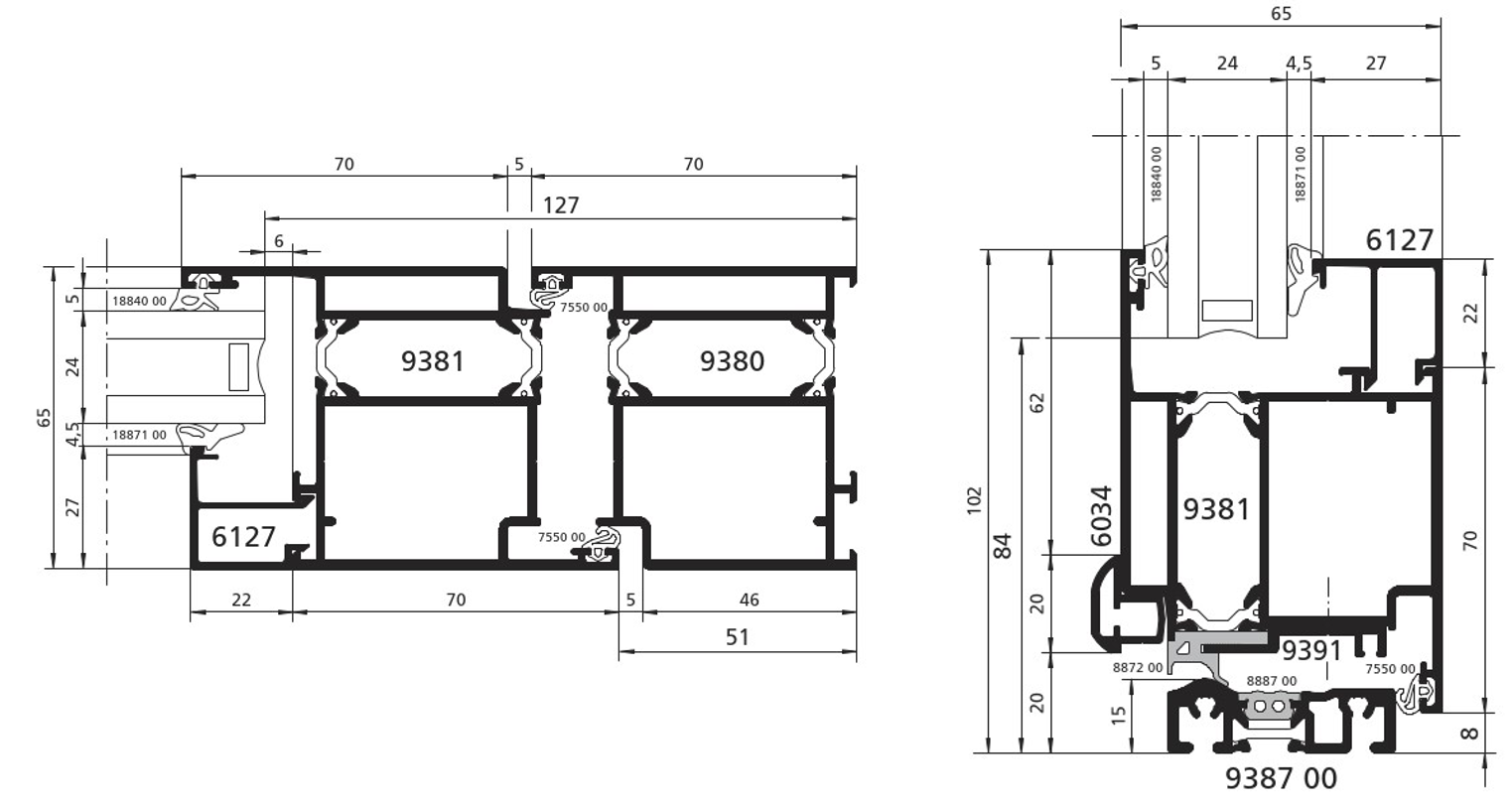
• Blendrahmen ALU: 70 mm Ansichtsbreite / 65 mm Bautiefe,
thermisch getrennt 3-seitig
• Flügelprofil ALU: 94 mm Ansichtsbreite / 65 mm Bautiefe,
thermisch getrennt 4-seitig umlaufend
• Thermisch getrennte Bodenschienen
• Anschlagschiene
DICHTUNG:
• Umlaufend schwarz
BESCHLÄGE:
• 1 Stck. HT-Schloss 3-fach Verriegelung-Falle-Riegel /35 mm Dornmaß
• 3x Bänder Dr. Hahn 2-teilig verstellbar / weiß oder EV 1
• 1 Drückergarnitur mit Schmalschild / EV1 weiß (ähnlich RAL 9016)
OBERFLÄCHE:
• Weiß (ähnlich RAL 9016)
• Wahlweise Oberfläche nach RAL-Farbkarte
VERGLASUNG:
• Hochwertige Markenisolierverglasung UG 1,1 W/(m²K) 4-16-4
• Füllung 28 mm PVC, wahlweise ALU isoliert
DÜBELBOHRUNGEN:
• Wahlweise 6,2 / 10,5 seitlich
• Auf Wunsch auch oben waagrecht
BODENANSCHLUSS:
• Anschlussprofile nach Wahl
• Blendrahmenverbreiterung bzw. Balkonanschluss
Profilschnitt Alu

Kunststoff
Technische Details
KONSTRUKTION:
• Ausführung nach Vorgaben des Systemgebers und RAL-Richtlinie
Favorit AD:
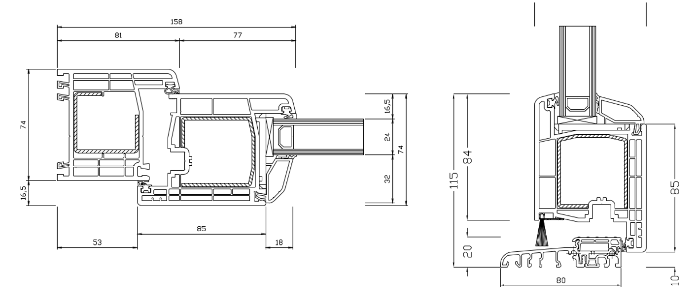
• Blendrahmen AD: 81 mm Ansichtsbreite / 74 mm Bautiefe
mit Stahlverstärkung
• Flügelprofil AD: 105 / 74 mm Bautiefe
mit Stahlverstärkung
• Thermisch getrennte Bodenschiene Eifel 80
Finis AD:
• Blendrahmen AD: 84 mm Ansichtsbreite / 83 mm Bautiefe
mit Stahlverstärkung
• Flügelprofil AD: 120 / 83 mm Bautiefe mit Stahlverstärkung
• Thermisch getrennte Bodenschiene Eifel 90
DICHTUNG:
• Umlaufend grau oder schwarz (bei Farbe weiß ähnlich RAL 9016)
• Umlaufend schwarz (bei Dekor- oder Acrylcoloroberflächen)
BESCHLÄGE:
• Haustürschloss, 3-fach Verriegelung mit Bolzen
• Optional 3-fach Automatikverriegelung
• 3 Stck. HT-Schließblech
• 3 Stck. 2 teilige NE-Bänder, 3-dimensional verstellbar
• 1 Drückergarnitur mit Schmalschild / EV 1
OBERFLÄCHE:
• PVC-weiß (ähnlich RAL 9016)
• Wahlweise außen Dekor bzw. Acrylcolor / beidseitig Dekor
VERGLASUNG:
• Hochwertige Markenisolierverglasung UG 1,1 W/(m²K) 4-16-4
• Unterlichte mit Füllung 28 mm weiß isoliert. Wahlweise UG 0,6 / Füllung 40 mm
DÜBELBOHRUNG:
• Wahlweise 6,2 / 10,5 mm seitlich
• Auf Wunsch auch oben waagrecht
BODENANSCHLUSS:
• Anschlussprofile nach Wahl
• Blendrahmenverbreiterung bzw. Balkonanschluss
Profilschnitt PVC FINIS AD

Profilschnitt PVC FAVORIT AD

Aluminium
Technische Details
KONSTRUKTION:
• Blendrahmen ALU: 70 mm Ansichtsbreite / 65 mm Bautiefe,
thermisch getrennt 3-seitig
• Flügelprofil ALU: 94 mm Ansichtsbreite / 65 mm Bautiefe,
thermisch getrennt 4-seitig umlaufend
• Thermisch getrennte Bodenschienen
• Anschlagschiene
DICHTUNG:
• Umlaufend schwarz
BESCHLÄGE:
• 1 Stck. HT-Schloss 3-fach Verriegelung-Falle-Riegel /35 mm
Dornmaß
• 3x Bänder Dr. Hahn 2-teilig verstellbar / weiß oder EV 1
• 1 Drückergarnitur mit Schmalschild / EV1 weiß (ähnlich RAL 9016)
OBERFLÄCHE:
• Weiß (ähnlich RAL 9016)
• Wahlweise Oberfläche nach RAL-Farbkarte
VERGLASUNG:
• Hochwertige Markenisolierverglasung UG 1,1 W/(m²K) 4-16-4
• Füllung 28 mm PVC, wahlweise ALU isoliert
DÜBELBOHRUNGEN:
• Wahlweise 6,2 / 10,5 seitlich
• Auf Wunsch auch oben waagrecht
BODENANSCHLUSS:
• Anschlussprofile nach Wahl
• Blendrahmenverbreiterung bzw. Balkonanschluss
Profilschnitt Alu

Kunststoff
Technische Details
KONSTRUKTION:
• Ausführung nach Vorgaben des Systemgebers und
RAL-Richtlinie
Favorit AD:
• Blendrahmen AD: 81 mm Ansichtsbreite / 74 mm Bautiefe
mit Stahlverstärkung
• Flügelprofil AD: 105 / 74 mm Bautiefe
mit Stahlverstärkung
• Thermisch getrennte Bodenschiene Eifel 80
Finis AD:
• Blendrahmen AD: 84 mm Ansichtsbreite / 83 mm Bautiefe
mit Stahlverstärkung
• Flügelprofil AD: 120 / 83 mm Bautiefe mit
Stahlverstärkung
• Thermisch getrennte Bodenschiene Eifel 90
DICHTUNG:
• Umlaufend grau oder schwarz (bei Farbe weiß ähnlich RAL
9016)
• Umlaufend schwarz (bei Dekor- oder
Acrylcoloroberflächen)
BESCHLÄGE:
• Haustürschloss, 3-fach Verriegelung mit Bolzen
• Optional 3-fach Automatikverriegelung
• 3 Stck. HT-Schließblech
• 3 Stck. 2 teilige NE-Bänder, 3-dimensional verstellbar
• 1 Drückergarnitur mit Schmalschild / EV 1
OBERFLÄCHE:
• PVC-weiß (ähnlich RAL 9016)
• Wahlweise außen Dekor bzw. Acrylcolor / beidseitig Dekor
VERGLASUNG:
• Hochwertige Markenisolierverglasung UG 1,1 W/(m²K) 4-16-4
• Unterlichte mit Füllung 28 mm weiß isoliert. Wahlweise UG
0,6 / Füllung 40 mm
DÜBELBOHRUNG:
• Wahlweise 6,2 / 10,5 mm seitlich
• Auf Wunsch auch oben waagrecht
BODENANSCHLUSS:
• Anschlussprofile nach Wahl
• Blendrahmenverbreiterung bzw. Balkonanschluss
Profilschnitt PVC FINIS AD

Profilschnitt PVC FAVORIT AD

Aluminium
Technische Details
KONSTRUKTION:
• Blendrahmen ALU: 70 mm Ansichtsbreite /
65 mm Bautiefe, thermisch getrennt 3-seitig
• Flügelprofil ALU: 94 mm Ansichtsbreite /
65 mm Bautiefe, thermisch getrennt 4-seitig
umlaufend
• Thermisch getrennte Bodenschienen
• Anschlagschiene
DICHTUNG:
• Umlaufend schwarz
BESCHLÄGE:
• 1 Stck. HT-Schloss 3-fach Verriegelung-Falle-
Riegel / 35 mm Dornmaß
• 3x Bänder Dr. Hahn 2-teilig verstellbar / weiß
oder EV 1
• 1 Drückergarnitur mit Schmalschild / EV1 weiß
(ähnlich RAL 9016)
OBERFLÄCHE:
• Weiß (ähnlich RAL 9016)
• Wahlweise Oberfläche nach RAL-Farbkarte
VERGLASUNG:
• Hochwertige Markenisolierverglasung
UG 1,1 W/(m²K) 4-16-4
• Füllung 28 mm PVC, wahlweise ALU isoliert
DÜBELBOHRUNGEN:
• Wahlweise 6,2 / 10,5 seitlich
• Auf Wunsch auch oben waagrecht
BODENANSCHLUSS:
• Anschlussprofile nach Wahl
• Blendrahmenverbreiterung bzw.
Balkonanschluss
Profilschnitt Alu

Kunststoff
Technische Details
KONSTRUKTION:
• Ausführung nach Vorgaben des
Systemgebers und RAL-RichtlinieFavorit AD:
• Blendrahmen AD: 81 mm Ansichtsbreite /
74 mm Bautiefe mit Stahlverstärkung
• Flügelprofil AD: 105 / 74 mm Bautiefe
mit Stahlverstärkung
• Thermisch getrennte Bodenschiene Eifel 80
Finis AD:
• Blendrahmen AD: 84 mm Ansichtsbreite /
83 mm Bautiefe mit Stahlverstärkung
• Flügelprofil AD: 120 / 83 mm
Bautiefe mit Stahlverstärkung
• Thermisch getrennte Bodenschiene Eifel 90
DICHTUNG:
• Umlaufend grau oder schwarz (bei Farbe
weiß ähnlich RAL 9016)
• Umlaufend schwarz (bei Dekor- oder
Acrylcoloroberflächen)
BESCHLÄGE:
• Haustürschloss, 3-fach Verriegelung mit
Bolzen
• Optional 3-fach Automatikverriegelung
• 3 Stck. HT-Schließblech
• 3 Stck. 2 teilige NE-Bänder, 3-dimensional
verstellbar
• 1 Drückergarnitur mit Schmalschild / EV 1
OBERFLÄCHE:
• PVC-weiß (ähnlich RAL 9016)
• Wahlweise außen Dekor bzw. Acrylcolor /
beidseitig Dekor
VERGLASUNG:
• Hochwertige Markenisolierverglasung
UG 1,1 W/(m²K) 4-16-4
• Unterlichte mit Füllung 28 mm weiß isoliert.
Wahlweise UG 0,6 / Füllung 40 mm
DÜBELBOHRUNG:
• Wahlweise 6,2 / 10,5 mm seitlich
• Auf Wunsch auch oben waagrecht
BODENANSCHLUSS:
• Anschlussprofile nach Wahl
• Blendrahmenverbreiterung bzw.
Balkonanschluss
Profilschnitt PVC FINIS AD

Profilschnitt PVC FAVORIT AD

Verfügbare Materialien und Oberflächen unserer Nebeneingangstüren:

Dekorfolie
Aluminium
Holz

Acrylcolor
Kunststoff-Alu
Holz-Alu
Zwei Wege zu Ihrer neuen Nebeneingangstüre
Sie möchten eine Holz-Nebeneingangstüre und diese selber konfigurieren?
Dies ist ganz einfach mit unserem Konfigurator möglich.
Sie möchten eine Aluminium oder Kunststoff Nebeneingangstüre oder sich telefonisch beraten lassen?
Dann teilen Sie uns doch gerne Ihre Wünsche mit & wir setzen diese für Sie um.
Sie möchten eine Holz Neben-eingangstüre und diese selber konfigurieren?
Dies ist ganz einfach mit unserem Konfigurator möglich.
Sie möchten eine Aluminium oder Kunststoff Nebeneingangs-türe oder sich telefonisch beraten lassen?
Dann teilen Sie uns doch gerne Ihre Wünsche mit & wir setzen diese für Sie um.
Zwei Wege
zu Ihrer neuen Nebeneingangstüre
Sie möchten eine Holz-Nebeneingangstüre und diese selber konfigurieren?
Dies ist ganz einfach mit unserem Konfigurator möglich.
Sie möchten eine Aluminium oder Kunststoff Nebeneingangstüre oder sich telefonisch beraten lassen?
Dann teilen Sie uns doch gerne Ihre Wünsche mit & wir setzen diese für Sie um.





















